Skip to main content

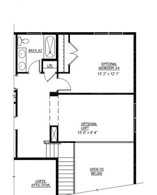
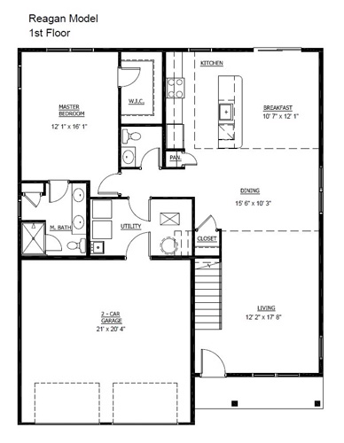
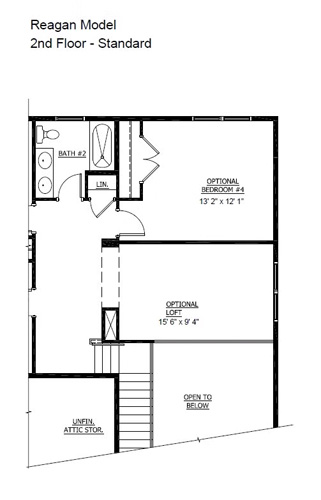
The Reagan

Plan Details

  • 4 Beds
  • 2 Full Baths
  • 1 Half Bath
  • 2180 Sq. Ft.
  • 2 Car Garage

Available Elevation

Questions About This Community?

Contact Us Today